< Referenzen

Heide: 1. Änderung des Bebauungsplans Nummer 63

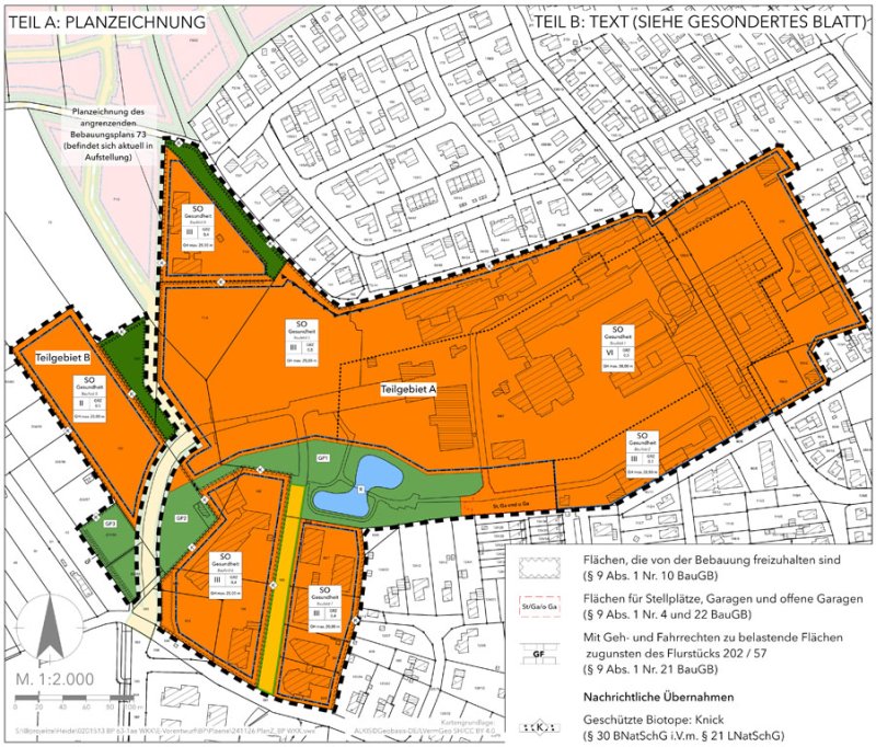
Durch die Änderung des Bebauungsplanes Nr. 63 sollen eine Bestandssicherung und Erweiterungsmöglichkeiten des
Westküstenklinikum Heide planungsrechtlich gesichert werden.

Der Geltungsbereich des Bebauungsplanes grenzt grenzt an mehrere Straßen, Wohngebiete, einen Windpark und einige Gewerbegebiete an. Bei der Untersuchung waren folgende Schallquellen zu betrachten:
- der Straßenverkehr,
- die Gewerbeflächen bzw. -betriebe in der Umgebung,
- Geräusche die im Zusammenhang mit dem Klinikbetrieb stehen.
Mit der schalltechnischen Untersuchung wurden die entsprechenden schalltechnischen Konflikte aufgezeigt und Lärmschutzmaßnahmen vorgeschlagen, sowie entsprechende Textvorschläge für Festsetzungen erarbeitet. Wichtig war dabei, einen rechtssicheren Bebauungsplan zu schaffen und Festsetzungen zu entwickeln, die eine größtmögliche Flexibilität für zukünftige Planungen gewährleisten.
Verfahrensstand:
Der Satzungsbeschluss erfolgte im Juni 2025.

L24506 Bild oben
L24506 Bild unten

Auftraggeber

Westküstenkliniken Brunsbüttel und Heide gGmbH
Esmarchstraße 50
25746 Heide

Bearbeitungszeitraum

2024 - 2025

Unsere Leistungen

Im Geltungsbereich wurden die Schallimmissionen dem Klinikbetrieb des Westküstenklinikums, aus Verkehrslärm (Straße), aus Windkraftanlagen und aus mehreren großflächigen Gewerbegebieten prognostiziert. Die Bewertung der Immissionen erfolgte nach DIN 18005, TA Lärm und 16. BImSchV.
Darstellung der Berechnungsergebnisse anhand von Rasterlärmkarten und Einzelpunkten.
Vorbereitung von Festsetzungsempfehlungen.