< Referenzen

Hamburg: Rahlstedt B-Plan Nr. 137 + 138 Nordlandweg u. Zellerstrasse

Konzeptionierung eines Oberflächenentwässerungskonzeptes gemäß RISA sowie Aufstellen einer konzeptionellen Schmutzwasserentwässerung.

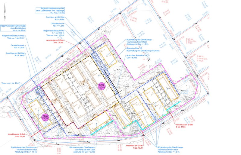
Im Rahmen der Erneuerung einer bestehenden Wohnanlage ist der Neubau durch die SAGA Siedlungs-Aktiengesellschaft Hamburg geplant. Hierzu wurden die Bebauungspläne Rahlstedt Nr. 137 und 138 neu aufgestellt. Im Zuge des Bebauungsplan-Verfahrens, wurden zwei Entwässerungskonzepte für das 1,8 ha große sowie das 3,2 ha große Grundstück erstellt.
Da eine Versickerung des anfallenden Niederschlagswassers auf Grund der natürlichen Gegebenheiten nicht möglich ist, wurde eine gedrosselte Ableitung mit Rückhalteeinrichtungen vorgesehen. Dabei wird die Rückhaltung und Ableitung des anfallenden Niederschlagswassers im Sinne der wassersensiblen Gestaltung durch das Zusammenwirken verschiedener Maßnahmen realisiert. Zur Regenwasserrückhaltung werden die Dachflächen als Retentionsdächer ausgebildet, sodass das anfallende Niederschlagswasser direkt auf den Dachflächen für den Überflutungsfall zurückgehalten wird. Zudem erfolgt die Rückhaltung neben unterirdischen Systemen innerhalb von Mulden, welche im Starkregenereignis einstauen und so das Volumen des Überflutungsfalls aufnehmen. Das anfallende Niederschlagswasser wird neben der Ableitung über Leitungssysteme durch ein offenes Muldensystem ergänzt, um das Verdunstung Potenzial weiter zu fördern.
Ergänzt wird dieses System ggf. durch eine Regenwassernutzung, bei der Regenwasser aufgefangen und den Anwohnern zur Bewässerung der Grünflächen und Gärten zur Verfügung gestellt wird.

A22026 Bild oben
A22026 Bild unten

Auftraggeber

SAGA Siedlungs-Aktiengesellschaft Hamburg
Poppenhusenstraße 2
22305 Hamburg

Bearbeitungszeitraum

2022 - 2023

Unsere Leistungen

Entwässerungskonzept